


Te huur
1780 m² bewoonbare oppervlakte
2 doucheruimtes
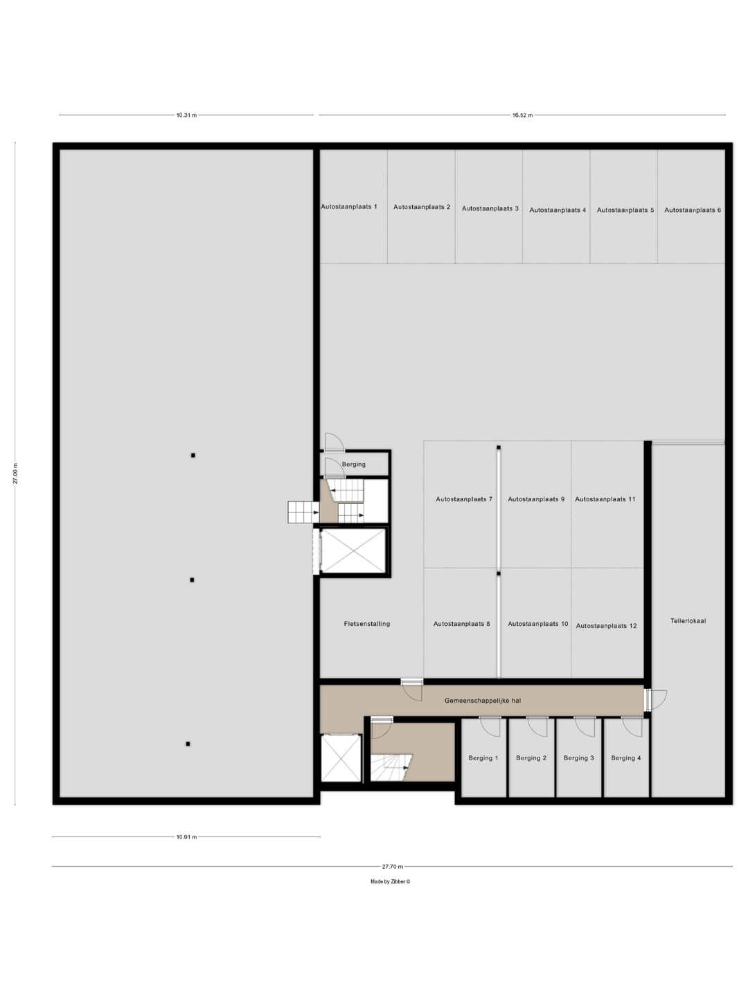
1 garage

1 overdekte parkeerplaats
28 parkeerplaats buiten
🏭 Te huur – Instapklaar semi-industrieel gebouw met topligging Op zoek naar een praktische en vlot bereikbare locatie voor uw activiteit? Dit semi-industrieel gebouw biedt alles wat u nodig heeft! Ruime en flexibel in te delen opslagruimte met bijkomende kantoren, ideaal voor een efficiënte combinatie van werk en administratie. De grote plafondhoogte en sectionale poort zorgen voor een vlotte toegang voor bestelwagens en vrachtwagens. Buiten geniet u van parkeerplaatsen en een handige manoeuvreerruimte. ✅ Troeven :

Huurprijs
€ 12.500/maand

Christine Adriaens
We Invest MeiseDownload de brochure
Ontdek alle informatie en foto’s van deze woning gratis door de brochure te downloaden.


Huurprijs
€ 12.500/maand

Christine Adriaens
We Invest Meise