



This property is sold ! Do you want to be part of our exclusive clients ?
To buy
Sint-Amandsstraat, 236 - 1853 Strombeek-bever
2 facades
3 bedrooms
210 m² living surface
220 m² land
1 bathroom
3 floors

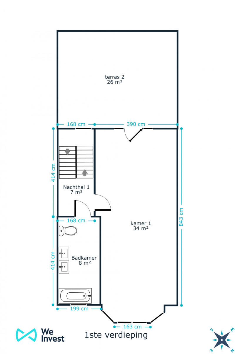
OOPS TOO LATE !!! STROMBEEK-BEVER - A few meters from Laken (De Wandstraat), close to all amenities (schools, transport, stores,...) We Invest Vilvoorde offers you this charming, fully renovated house. The property is laid out as follows: an entrance hall, a dining room, a fully equipped kitchen, a bright living room giving access to a terrace (26m2) and a south-west facing garden (170m2). On the second floor: a bathroom with double sink and WC and a very spacious bedroom of 32m2 with access to a terrace. On the second floor: a shower room with double sink and WC and two bright bedrooms. The house has a full basement and an attic for storage. Two parking spaces in front of the house. Electricity compliant until 2043. EPC: D
Ideal for a family! For more information or a visit: contact WE INVEST VILVOORDE


We Invest Vilvoorde
We Invest VilvoordeWe Invest Vilvoorde
We Invest Vilvoorde

We Invest Vilvoorde
We Invest VilvoordeWe Invest Vilvoorde
We Invest Vilvoorde