To buy
Allées du Languedoc, 2A/14 - 1140 Evere
1 bedroom
74 m² living surface
1 bathroom
floor 3 / 5
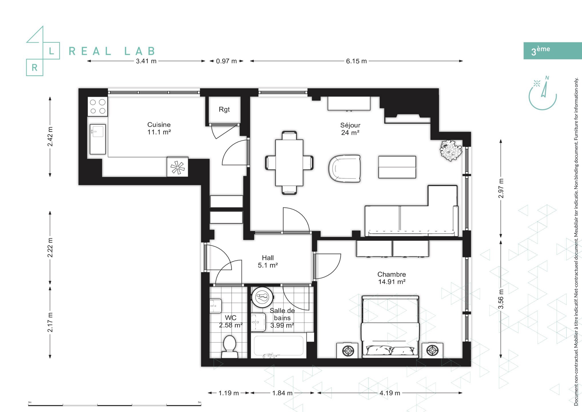
Today, Real Lab presents this bright 1-bedroom corner apartment of +/- 74m2 for renovation.
Its cleverly arranged spaces and generous volumes will charm you and allow you to imagine your renovation projects!
Situated on a corner, the apartment is pierced by numerous windows, giving it a pleasant, diffuse luminosity.
It comprises a spacious entrance hall (+/- 5m2), bathroom, separate toilet, bedroom (+/- 15m2), living room (+/- 25m2), kitchen (+/-11m2). Cellar located on level -1. Cellar on level -1.
As you can see, there's no need to compromise: this apartment has all the bells and whistles!
Ideal location. Close to Bordet and Evere train stations, streetcar 62 and bus 65. Points of interest include the Evere sports complex, Eurocontrol and NATO.
A new boiler has just been installed in the condominium!
Average charges (including building maintenance, managing agent, common cleaning, private heating, private water) :
2021: +/- 141€/month
2022: +/- 367.25€/month (higher energy costs and repairs to the boiler, which has been replaced).
Reserve fund: +/- 132€/month over a short period to cover the cost of repairing the facades.
PEB : F // 59 kg CO2(m2.an) // 307 kWh/(m2.an)
Xavier Bruyninckx
We Invest Bruxelles-SudXavier Bruyninckx
We Invest Bruxelles-Sud
Xavier Bruyninckx
We Invest Bruxelles-SudXavier Bruyninckx
We Invest Bruxelles-Sud