


Ce bien est sous option ! Vous souhaitez faire partie de nos clients exclusifs ?
À vendre
Parvis Notre-Dame, 16 - 1400 Nivelles
11 pièces
3 façades
3 chambres
111 m² surface habitable
156 m² terrain
1 salle de bain
1 salle de douche
2 étages
*** Sous option *** We Invest Waterloo a le plaisir de vous proposer cette maison, à rénover, 3 chambres à deux pas du centre de Nivelles et de ses nombreuses facilités.
Ses 156m² vous offrent au rez de chaussée : un séjour ouvert sur le cuisine et l'extérieur, un bureau et une salle de bains.
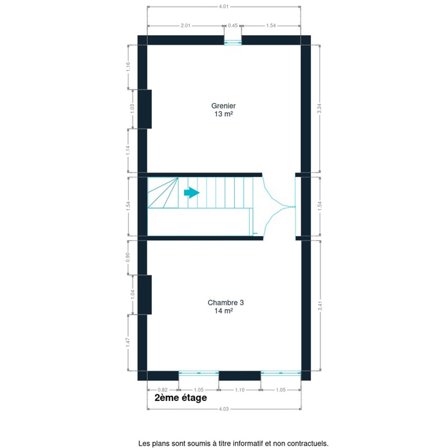
Les étages disposent de 3 belles chambres ainsi que d'un grenier pouvant être aménagé.
La maison se complète par deux belles caves, une agréable terrasse et un jardin orienté Sud-Est.
PEB G , toit en tuiles, certificat électrique non conforme.
Travaux de rafraîchissement à prévoir. À visiter sans tarder !
CONTACT tel : 02/319.46.46 email : demandes.bw.centre@weinvest.be - Présentation complète avec plans et vidéo : https://weinvest.be/fr-BE/property/for-sale/nivelles/house/113223
Prix d'achat
235 000 €
Découvrez-en plus
Découvrez encore plus de photos et d'informations gratuitement à propos de ce bien en téléchargeant son dossier.

Recevez nos nouveaux biens en avant-première
Enregistrez vos critères de recherches
Prix d'achat
235 000 €